<
>
>
CORVINUS SPORTS CENTRE
competition proposal
Budapest, Hungary, 2017
team:
Sándor Guba
Péter Hámori
Balázs Besenyei
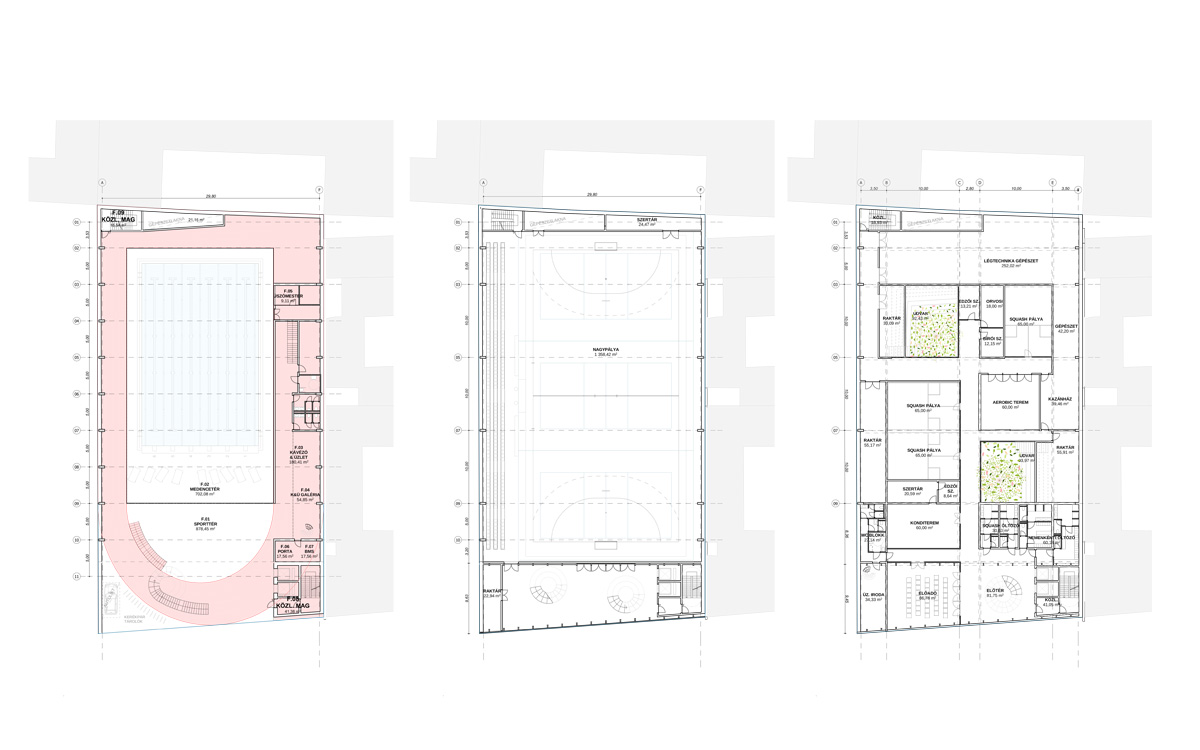
The brief called for a gigantic building volume of a multifunctional university sports centre in a neighbourhood, where smaller and lighter building types are usual thus creating its own human scale environment. Our proposal opened up the building both in its physical appearance and performance in order to avoid generating an inclusion within the urban structure.
A street level “sports public space”, open to outsiders as well; a semi-public rooftop level with numerous urban sports possibilities (slackline, urban gym, skittles); studios and gyms open to business meetings, team building and coaching sessions.